现在买房已经成为一种潮流,感觉没有房子就无法结婚。你们有没有这样的想法呢?小李已经20来岁了,想要结婚但家里也拿不出那么多钱来买楼房,家里东凑西攒,只有15万。我们可以想一下这点钱买个门楼都不够,这可愁坏了他。不过有福气的人是没有人可以比的,他正好赶上有一家房子准备出售,面积小还便宜,整套下来才花了20万。大家是不是觉得他捡到了便宜呢?而且他家装修的也很有特点,虽说面积不大,但装后视觉上有120平的空间,简直让人羡慕。
案例:39平简约风
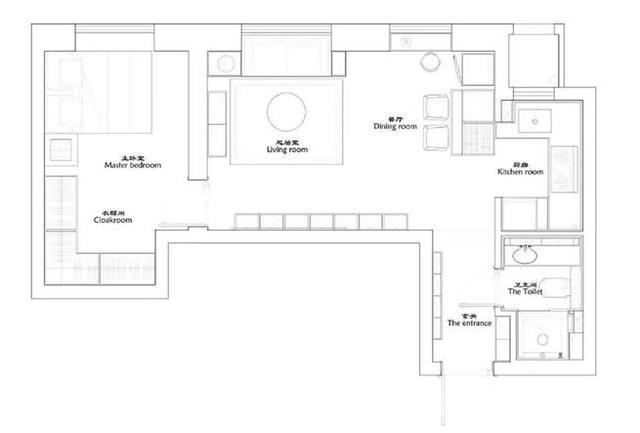
居住成员:大人2个、孩子1个
房屋面积:39㎡
房屋类型:小户型
空间格局:客厅、厨房、 卧室、餐厅、吧台
主要建材:橱柜、木质材料、白涂料、投影仪、幕布
图片来源:峰峰网络投稿
门口这虽说窄了点,但也有半人高的木质鞋柜,方便出行。因面积不大,墙壁颜色以白色为主这样可显得空间扩大。
看这鞋柜还是悬空的,上边有好几个小门,使其拉伸层次感。鞋柜上有一个很窄的平台,出行的包包可以摆在上面。
这里的地面是木质地板的,并没有选择深颜色,因为浅颜色会给人沉闷。这样的浅颜色能使这里的空间变得亮堂还扩大面积。
客厅的沙发是在阳台边上,这样我们躺在沙发上才能感受到光的温暖。家里没有电视,装的是投影仪,这样在家里看电视有种看电影的感觉。
厨房本来很窄,厨房区域的橱柜都弄成白色能让厨房变大。我们看别瞧空间小,却内嵌了两个洗衣机呢!
厨房的柜子上面放有灯带,这样晚上做东西会比较方便。
洗菜池是单盆的,这样会比双盆的方便。水龙头是可以旋转的,不会影响到开窗户。窗户上还做了百叶窗,如果穿着睡衣在室内做饭可以把它拉下来。
近距离看的两台洗衣机是内嵌在橱柜里,有人可能问那电源怎么办?这个大家不用担心,我们看在左手边的墙壁上就有三个插座。方便来洗衣服或者其它家用电器来用。
在厨房的外边就是小吧台,做好的饭可以在这里来用餐。而且吧台边上的椅子也很高、大、上。紧接着边上还有冰箱,这样做饭或者是拿其它东西是比较方便的。
这个小台面是木质的,不会像大理石那样冰手,能让人感觉到一些暖意。
主卧里面的墙壁上做了置顶的衣柜,放置很多的衣物,收纳很强大。里面的地面也是木质的,如果不用水泡可以用很长时间。
里面的床是靠近窗户的,床边做了小心思,那就是插座比较充足,晚上玩手机很方便。而且床头还有一个吊灯,有设计感。
从门口看里边最显眼的就是厨房,而且我们从这个角度看感觉空间拉长了很多。你们觉得像不像100多平的房子呢?
厕所空间不大,洗手池和马桶离得有点近,这算是一个小误差吧!但是洗澡的地方给隔开了,避免了生活中的尴尬。
洗手池这的镜子挺大,铺满了半面墙,而且这镜子是防雾镜,防止潮湿后镜子朦胧的问题。洗手池的橱面也不小,放洗漱用品没有问题。
虽说这房子只有39平米,经过一些收纳的设计,还有一些颜色的搭配,让室内空间变得又大又宽敞,而且每个区域都发挥着它各自的功能。这样既省钱又能扩大面积的房子是不是大家也想要呢?

2020-06-18 15:10:55