这是我见过最大气的新中式装修,看一眼就爱上了,真是美到骨子里!
现如今新中式风格为最流行的装修设计风格之一,它结合传统与现代为一体,这也让新中式风格多了一丝时尚、精致的韵味,越来越符合当下年轻人的审美追求。下面小编就为大家推荐一套户主本人设计的新中式案列,希望可以帮到大家。
案例:120㎡
居住成员:3人
房屋面积:120㎡
房屋类型:大户型
空间格局:三室两厅两卫
主要建材:磁砖、系统柜、木皮、玻璃、大理石、铁件、玻璃、磁砖、木皮板、大理石材、板岩
图片来源:丫丫投稿
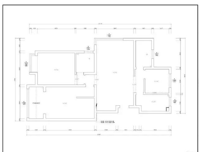
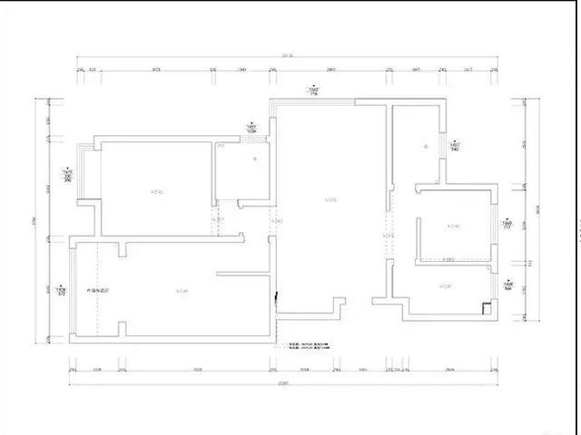
结构图
平面布置图
因为房子空间与户型设计非常合理方正所以户主没有做过大的改动,以客厅为主,左侧为主卧室;右侧为餐厅、书房、会客休闲区空间,整体布局非常合理。
首先映入眼帘的就是客厅,浓浓的新中式风格显得整体空间很古典富有诗意,沙发背景墙很抓人眼球,让人有眼前一亮的感觉,沙发和茶几选用实木与布艺进行搭配,这也是新中式风格的代表之一,黄色与橙色的抱枕可以很好的起到室内装点的作用,电视背景墙没有过多的装饰这样可以衬托出沙发背景墙的独特。
沙发背景墙起名与喜上眉梢,体现出中国人深入骨髓的待客之道,也从中传达了浓郁的东方精髓。
户主考虑到实用性与功能性,在保留了新中式元素的情况下还考虑到了现代人使用习惯。在扶手靠背处合理的融入了人体工学设计,使用起来更舒适柔软。
玄关真的不得不说很美观显得整体空间是那么的美好自然,橙色的花进行了点缀的效果使空间更加蓬勃生机。
卧室将现代元素与古典因素相结合,打造出一个古朴典雅的居住环境,在这样一间卧室休息不仅可以抚慰烦躁的心情,还可以带来舒适的生活体验。
厨房选用现代风格,白色的岩版搭配上实木的边条显得整体厨房空间简洁明亮,从视觉上看空间扩大不少。蒸箱烤箱采用镶嵌式设计很好的节省了空间还美观实用。
卫生间整体设计简洁、大气、兼顾了传统风格与现代元素,留白、对称、层次感都很好的体现出来了。

2020-06-19 21:05:00