这是我见过最大气的轻奢新中式,看一眼就喜欢上了,太漂亮了!
随着装修风格的多变化,中式风格里的厚重沉稳逐渐老龄化,已经不适合现代居家设计了,然而新中式风格已经摆脱了传统中式的繁琐与厚重。将中式元素与现代风格完美的融合在一起,呈现出一种令人舒适的美,这种美也是来源于设计师对中式文化的热爱与积累。
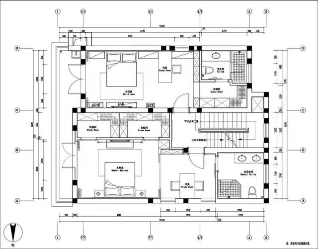
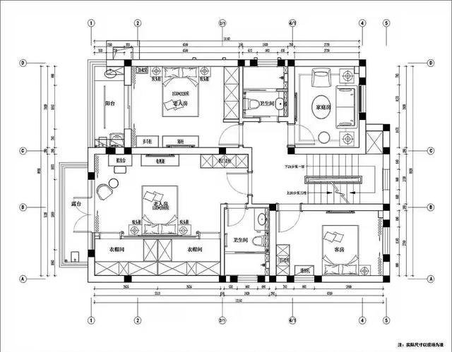
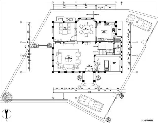
接下来就给大家晒晒面积420平米的新中式别墅设计,如图是别墅的平面图共三层,有中式装修需要的不妨参考下。
首先介绍一下客厅,客厅使用面积非常宽敞不得不说面积大是真的好,再加上两面墙体都是玻璃围绕屋内采光环境很好。硬装整体以简约为主但又不失大气,软装设计丰富了空间效果也把屋内装扮的端庄沉稳。真的不得不用完美两个字去形容。
电视背景墙采用大理石与实木护墙板拼凑设计组成,这样更能突出新中式风格的特点,毕竟前者代表现代元素,后者代表中式元素,两种风格相互结合,真的很符合新中式风格的态度。
吊顶加上了黑色线条元素,显得空间更加有层次感,茶几也是黑色的,这样做到了上下呼应的感觉,楼梯的右侧房间户主做了一个小健身房,方便平日里健身的需求。屋内右手边一排柜子可以进行合理的出纳,进门后钥匙等随手小物件这时就可以放置在此。
餐厅的设计看起来是不是很优雅?圆形餐桌可以很好的利用空面积,并可多人同时就餐,左侧背景墙是镂空设计,这样太阳就可以照射进屋内使室内更明亮宽敞。
餐厅旁就是茶室,在装修布局上也显得颇有诗意。茶桌和椅子选用朴素的木质结构,当真富有品味。
卧室背景墙选用护墙板做装饰,搭配装饰画显得整个空间都雅致许多,床体选用实木结构颇为稳重,再加上现代化床品非常适合休息。
休闲区整体没有过的的装饰,蓝色的沙发倒是很有亮点,家人可以聚在一起聊天是一个很好的选择。
次卧背景墙灰色的硬包搭配中式元素的饰品看起来很有品味。
工作区域用来学习办公,整面墙打了实用的柜体可以用来收纳,也可以摆放一些书籍。原木色的柜体也为整个房间增添不少温馨感。
卫生间使用灰色大理石与实木柜体拼接而成,即实用又大气。

2020-06-19 21:08:02