30平米老宅逆天改造,拥有三室一厅,简直不敢相信自己的眼睛
房屋面积:30㎡
费用:16万
房屋类型:小户型
空间格局:三室一厅一卫一厨
主要建材:磁砖、系统柜、木皮、油漆、铁件、玻璃、马来漆、大理石、铁件、玻璃、石材、磁砖、软模、木皮板、喷漆、镀钛铁件、大理石材、木皮、版岩!
图片来源:大大投稿
此房屋使用面积30平米,房屋年龄约120年已经是老古董级别了,业主希望求助设计把屋子改造成小复式,希望房间多样化。这也是难为设计师小李了,下面小编带大家参观一下30平米小复式改造成果。
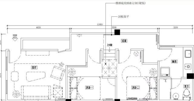
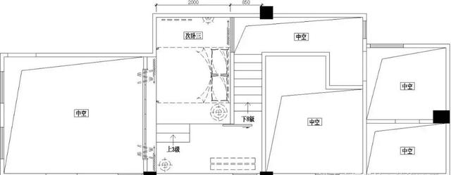
此图分别分为一层二层平面布置图
客厅改造后有没有一种清新的感觉铺面而来?设计师使用大量的绿色乳胶漆进行墙体的装饰,窗帘使用奶茶色,这两者搭配显得整体空间温柔又清新,沙发采用橙红色布艺材质,整个空间色彩感非常强烈,不得不夸赞一下设计师搭配。
为了满足业主需要的三房间功能,空间利用上就非常紧缺所以就取消了餐厅区域,这样用餐时可以在茶几上也是不错的选择。
悬挂式吊灯散发出来的光源为整体室内营造出温馨舒适的氛围,背景墙采用拼接式设计整体看起来文化范十足。应该说家里每个细节都做到了无微不至的效果。
电视背景墙的位置利用了楼梯公共区域,还形成了一个较大的收纳空间。通过隐形门的设计保留了空间的完整性也很好闲置出有利的收纳空间,真是两全齐美的办法。
空间加入轻奢延长式壁灯显得整体空间精致许多。
走廊的空间利用壁灯形成光阴气氛。
厨房改造前非常破旧
改造后小小的厨房既干净又整洁,厨房安装了上下柜子方便进行出纳物品,蒸箱烤箱做成镶嵌式嵌入柜体内,整体通透又实用。
一楼卧室通过镜面处理弱化了梁的厚度整体延伸了空间的尺度,搭配上绿色墙壁整体空间闲的很宽敞。
这间卧室保留原有的高度,床头背景墙采用拼接式设计,床头柜与靠包选用橙色空间整体温馨整洁。
二楼卧室采用紫色背景墙做为装点,橙色的造型床头柜更是衬托出空间的层次感。
卫生间改造前单调破旧
卫生间采用大理石墙砖进行装饰,洗漱盆精致又小巧足以满足一家三口的使用。

2020-06-19 21:09:26