简约风格的装修,并不是为了省钱。在材料的选用和精湛的做工下,简约风格一样是价格不菲,高质量的优质简约设计,能让人在视觉上产生极大地舒适度,这也符合当下的装修趋势,"由繁入简"深得人心,健康环保、简约大气、不过时、高可塑性。
今天就来给大家分享一个这样的简约案例,这对90后两口子108㎡的婚房,硬是被设计师打造出了高级画面,简约风格装修与豪华一点不关联,却照样把人迷住,两点随处可见,各位看官我们一起来看看吧!
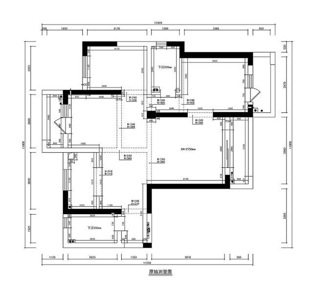
设计图纸
房屋的真是建筑面积是119㎡,是三室两厅一厨两卫的格局,整体户型不错,小瑕疵很多,比如空间太紧凑,其中以门厅、餐厅、阳台等区域显得尤为突出,不符合屋主对居住品味的要求。
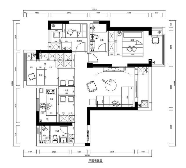
本房屋平面改造布局如上图,装修细节描述如下:
1、适当的将公卫墙体向内推进,为嵌入式鞋柜留有更多的收纳空间。
2、给餐厅留出更大的空间来,所以将书房外使用率低的阳台进行打通。
3、餐厅空间扩大后,充分利用所哟与空间,桌椅剧中摆放,两侧墙体利用起来,能提供更多的收纳空间。
屋内实景
简约风格是极其考验房子装修细节的。
▲正对入户门视角
进门一入眼的进户门厅,可以看出设计师把线和面的关系运用和处理的非常好,收口处绝对是精致又耐看。左手处,选用的KD板为浅木色,目的是修饰空白的承重墙,看起来会自然且更有质感,衣镜和挂衣功能采用的是嵌入式,合理的利用了空间,嵌入式暖光筒灯,配合白瓷砖,高级而又不失温馨。
▲餐厅
站在餐厅的角度,能够看得清左边的公卫门口。牺牲一点卫生间面积,并将墙体向内推进,但是玄关就获得了更大的存储空间。
两组鞋柜完美的设计在公卫门洞的两侧,这是凸显出细节之处。右侧鞋柜的设计也为冰箱的摆放考虑留出了位置,紧挨厨房门口,不得不为设计师的巧妙设计点个赞。
之前的改造细节中提到了通过书房的空间置换,餐厅的面积就非常的宽敞,将整个视觉空间进行了拉伸。餐桌和椅子紧贴墙体摆放,不使用时椅子可以放入桌下,对过道的空间丝毫没有影响。
对于木元素的延续则是采用了点缀式的模块化对比,空间上会更和谐更有立体感。餐桌后的转角收纳区是非常值得称道的,隐性的无拉手设计,看着是墙体,实则内有乾坤,超大的储物空间。设计之巧妙!
在空间的节省上,设计师也是下了很大的功夫,平行门洞做了相同的浅墨色推拉门,所有细节处理的非常到位,感官上非常舒服。高挑细腿的家具跟室内的整体硬装线条相呼应。
▲客厅
原始的房间采光效果也是很有限的,墙体粉刷为白色除了简约风格外,主要的还是为了更好的折射光线,让屋内更通透、明亮。
可以看到,室内客厅采用的是空气循环扇。而空调则是风管机的式样,隐身于吊顶之中。
屋顶则是拉平了吊顶,凸显出整体的线条干练,进而也拉伸了客厅的空间。筒灯则均匀的分布于各处。既不影响视觉也能兼顾采光的柔和与均匀。吊顶风管机的左侧圆形装饰,是一个嵌入式音箱。能为家人提供听觉上的享受。
硬装的简洁需要有软装的层次感来配套。合理化的家具数量能让室内拥有更富于的空间,在以后的生活中可以根据需求,增添其他单椅或是软装饰,让空间更丰富。
沙发的色调与整体的硬装色系有鲜明的对比,桌椅高低错落,视觉柔和,也减少了更多的磕碰。电视柜以实木隔板代替,木色元素加强了屋内的关联性。下方的日式抽屉很好的解决了收纳的问题,方便又灵活。
黄色的椅子增加的是跳色,活跃空间的同时又不会显得突兀。
在沙发的角落,能看到浅浅的线条,家具的布局使得空间富有丰富的层次感。镜面和台灯的陈列,营造了轻奢的氛围。
▲主卧
祝我的阳台不晾晒衣物,角落设计梳妆台,另一边则养上绿植,让家更自然舒适。
床头的设计让日后的更换和清洗更为便捷轻松。
懒人沙发在阳台的一角,看书沐浴阳光,十分惬意。
电视机考虑到需要走人,所以没有买成品电视。柜子则是选用嵌入式的。同样是木色,自然而然朴素。
▲主卫
▲公卫
收纳是此处设计的亮点,平行于马桶和洗漱台,将背后的空间利用的非常完美。底部的灯带烘托出了更好的氛围。浴室的角落结构被设计师充分的进行了利用。
▲儿童房
▲书房
左边是办公区,浅色木架的墙面具有很好的收纳和展示效果,右边则是隐型的壁柜,用来收纳衣帽等。
本案的分享就到这里了,这么优秀的设计是不是也给你带来了灵感?希望能给大家带来一些参考。

2020-06-20 13:12:38