01
如何画异形造型的施工图纸?
简单来说,主要分为以下几个步骤:
我们一步一步来看;
第一步是找到对应关系:
多边形设计案例(上瑞园珠设计)
首先,拿到这样的设计后,首先要通过平面图和效果图,找出设计分割与平面家具(点)的对应关系。
如下图所示:
找到效果图与平面家具的对应关系
通过绘图恢复大分割关系。
第二步是分析设计模数:
找到吊顶造型与平面布局的位置对应后,下一步就是找到这个造型的模数关系;当然,这里会有两种情况;一是建模的模块化关系容易找到,二是建模的模块化关系不容易找到或者根本没有模块化关系。
我们将在这里单独解释。
一、很容易找到模数关系:
建模模数关系一目了然的空间案例很多,或者以刚才这个空间为例。我们可以简单地把它分解成几个三维元素或块来看,就像这样:
当你找到这些典型的设计块时,就相当于得到了它的所有属性信息,包括规格和尺寸。因此,您可以对它们进行编号,或者将它们单独放在绘图旁边进行检索。
然后,把这些单独的块一个一个地填入你刚才画的天花板图的框架中;所以你会得到这样一张照片。
当然,为了您的理解和以后的设计推敲,可以使用3D模型工具来完成这一步,比如使用SU来模拟这个形状的顶部设计,就像这样:
第三步:引导模型绘图:
得到三维详图后,基本相当于得到了绘制吊顶图所需的全部信息。所以,通过这个模型画天花板图,我相信是顺理成章的事情。
导出三维模型并绘制施工图
简单总结一下,当我们一眼就发现这种定模定程的异形形状,其实画它的平面图是非常容易的。掌握这种分析思维,下次就不用担心这些案例了。
w.361zimeiti.cn/wp-content/uploads/2021/11/2021110716141817.jpg">b、不容易找到模数关系的情况:
当然,上面这种制图方法是针对造型相对简单,比较容易找到模数关系的情况下使用的分析方法,但是,如果碰到像这位朋友提出来的这种不好判断规律的造型,或者一些压根就没有规律可循的造型时,就需要采用另外一种策略了。
什么是网格法?
简单说来,就是面对这种没有规律可循的造型,最简单的方法就是先知道它在空间中我位置和面积形状和大小,然后使用一定模数的网格线来定位这个造型,网格面积越小越精准。然后再找到高低起伏的点,通过对这些极限点标注,来达到定位造型的目的。
比如这样:
假山水墙面构造案例↑
平面图案立面放样图↑
节点示意图↑
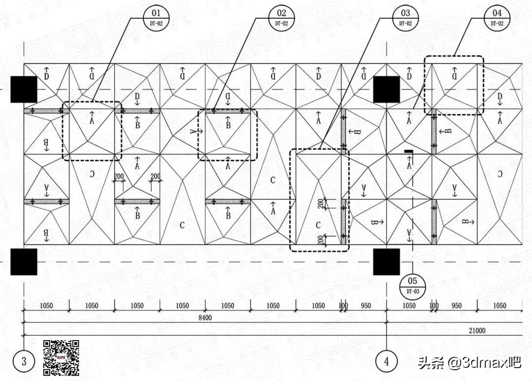
不规则多边形吊顶:
多边形天花效果图 ↑
多边形天花扩初图 ↑
回到这位朋友最开始问的这个问题中来,像上图中这样没有规律可循的多边形吊顶构造,我们就应该采用这种“网格法”来实现。
最终可得到这样的效果:
多边形异形吊顶平面定位图↑
这里需要说明一点,上面给你展示的CAD图纸并不是一上来就直接通过CAD来完成的;最快速的方式是自己先通过三维模型模拟后,确定了造型后,最终将三维模型导入CAD再通过“网格法”来完成平面点位图以及峰值点位的标高图纸绘制的。这一点大家要明确。
要完成上面这样的多边形吊顶施工平面图,至少需要这么几步:
多边形异形吊顶平面定位图↑
通过模型定义到各个点位的标高信息↑
画出CAD的平面投影图↑
然后,通过刚才那张点位标高信息,标注上所有点位的标高信息。
最后,在这些图纸完成后,给出解读这些节点标高信息的轴测示意图,就完成了整个多边形异形吊顶的平面体系绘图工作。
你看,这样拆解下来,你会发现其实画出这样看似复杂,一开始不知道从哪儿下手的吊顶图,其实并没有你想像中的那么难吧。
当然,“网格法”绝不仅仅是用在解决这种还算容易绘制的多边形造型上;它在解决单一的异形空间或造型的图纸化表达方面,绝对是堪称“神器”的存在,所以,希望大家能够牢牢掌握这个方法。
02
多边形造型的节点图纸怎么表达?
当我们拿到上面这样的平面施工图后,就等于有了大致的三维模型和构造关系。所以,我们接下来要做的就是根据饰面材料的类型、面积大小和使用部位等因素,来选择合适的构造做法,来让这个看上去很复杂的造型变成可以一步步落地的节点图纸了。这样就完成了整个造型的制图工作。
同样的,如果想要达到类似于上图这样的效果,同时考虑到消防规范和安全性能,我想至少可以有3种切实可行的方法来实现。
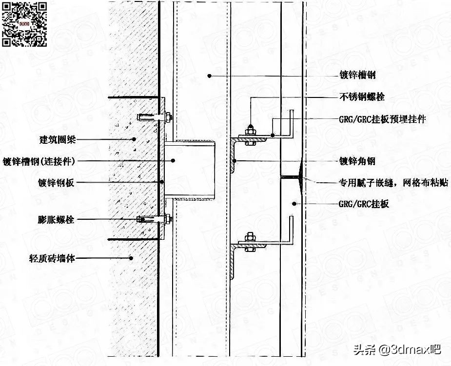
1、采用铝板干挂的形式,就类似于这样:
参照铝板干挂的标准节点图,可以得到这样的节点图:
这种方式是最典型,也是最常用的,同时也是性价比和安全性最高的做法,适用于几乎任何空间。
2、若吊顶面积小,可以采用玻璃或不锈钢来实现,也是种不错的选择:
当然,考虑到安全性,这种做法只适用于面积较小空间较矮的吊顶中。
3、第三种方式就是最简单粗暴的形式了,直接采用GRG定制的形式,厂家根据我们的平面定位图直接生产出GRG成品单板,现场烧好钢架后,直接干挂即可;
采用这种方法来做这样的吊顶,安全性高,施工速度快,生产周期短,唯一的缺点就是成本太高。
GRG的标准节点示意图↑
好了,关于如何绘制异形构造的施工图和节点图的内容大概就介绍到这里;希望我的一些思考对你有所启发。
03
没法用网格法画图时怎么办?
上面提到绘制异形空间或造型的施工图纸时,提到了两种最常见的情况,尤其是网格法,几乎可以解决所有二曲面的造型定位和图纸表达问题。但是,在实际的项目开展过程中,往往会碰到现场不能使用网格法施工的情况。
比如,下图这样:
就如上图所示,一个曲线造型墙体,需要定位它的曲率,在的图纸上,我们可以通过打网格的形式来实现,但是,这种方式肯定不可能被1:1的在现场打个网格出来,对吧?
或者说,就算你咬牙要现场1:1的按照图纸中的网格进行放线,当时,现场有可能不满足放线的条件,比如有些网格的点位飘在楼板之外了。施工方压根没办法根据你的网格图放线。
那么,这种情况下,我们又应该通过什么样的形式来精确的表达出曲面的放样图呢?
其实制图方法很简单。
咱们可以先把曲面墙单独看成单一的体块,然后先找出曲面墙自身的定位关系,最后,在去找曲面墙与建筑空间的定位关系,具体操作流程如下:
在这里,你需要记住,只要是二维平面上需要做定位放样,不管大的规模大小多大,曲线多么复杂,通过这两种网格放样的形式,都能实现~
好了,今天的内容就给大家讲到这,下面用一张卡片帮大家回顾主要内容:



2021-11-07 17:39:09